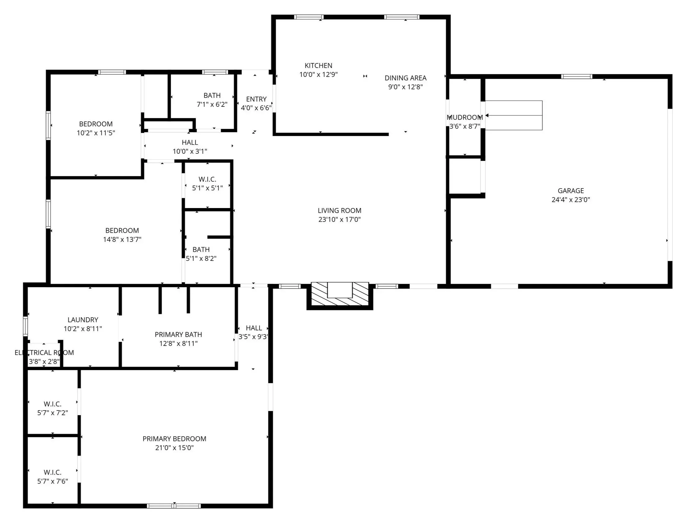
FLOOR PLANS

Listings with floor plans don’t just look better, they perform better. Give buyers a clear understanding of layout, flow, and space before they ever step inside. Every floor plan is designed to be simple and visually appealing, making it easy for buyers to understand how the home flows from room to room.

El Reno, OK Real Estate Photography. OKC Real Estate Photographer. Floor Plans House Layout

Floor plan measurements are approximate and intended for marketing purposes only.